
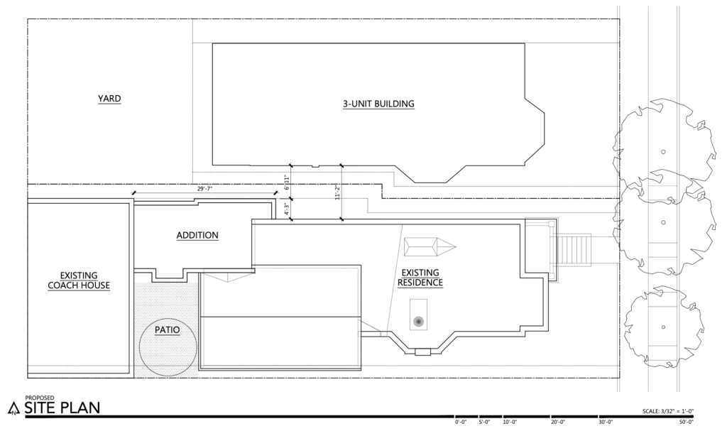
This proposal includes a request to rezone this site RT-3.5 to RT-4 to meet the Floor Area Ratio (FAR) requirements to add a rear addition. This project would include downzoning back to RT-3.5 post-construction. You can see the plans attached below, and please reach out to our office at (773) 525-6034 or Ward44@CityofChicago.org to leave feedback.
Supporting Documents:
- 3440 N Janssen plans – 3/9/26
